Catering Services
General Planning Considerations
Catering services department in a hospital
A catering service department is concerned solely with the large-scale storage and production of food.
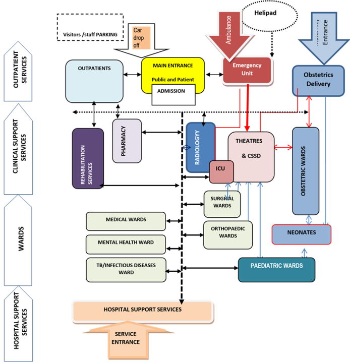
Location & relationship to other departments
The catering service unit should be on one level to facilitate an effective work flow.
It should be located centrally to supply patients’ needs within the shortest time and have direct connection to most hospital corridors.
Ideally it should also be on the same level as the wards in order to reduce reduce the transport distance for food and the movement of people. See Figure 1.
If a multi-floor relationship with the service departments is unavoidable, the service elevators by which food must be transported to wards/divisions, must be close to the food service unit.
The service elevators must be reliable and supported by emergency power.
The transport corridors must be covered with an even surface, and ramps should be within the design tolerance required by the food trolleys. Alternative routes should be available in emergency situations. Due to the nature of the activities taking place in the catering department, it is a high fire-risk area. Fire-fighting vehicles should therefore need to have immediate and easy access to the unit.
The unit should not be located where it may be exposed to airborne and waterborne contamination.

Vehicular access for deliveries and collections
The ground-floor level provides the most economic and convenient location, with easy access for delivery vehicles to the delivery bay.
There should be sufficient space for parking and manoeuvring service and other vehicles.
The unit should have easy access to a good road system to ensure safe and easy vehicular access for deliveries of supplies and refuse removal.
The route through which the refuse is removed must be the shortest possible route to the refuse-removal area.
The removal of refuse from the refuse-storage area to the central refuse-removal areas must take place through an exit door with a ramp.
Types of catering services
The choice of a specific type of food system for a healthcare facility can currently be made from the following systems:
- Conventional food system (the topic of this document)
- Cook-freeze food system
- Cook-chill food system.
This document only covers the conventional food system. The other two systems will be discussed briefly for clarity only.
Conventional food system
Cook-serve is the conventional system of catering currently in use in many hospitals. The system complies with the following criteria:
- Food is freshly prepared and cooked for each meal and served whilst hot to the patients and staff.
- The conventional food system is a system with a continuous preparation period and a serving period.
- Food is prepared according to standardised recipes and according to conventional or automated preparation methods. Food is freshly prepared for each meal and is directly portioned, dished up, garnished and served after the cooking process/preparation process which can also take place in batches.
- The dishing-up and garnishing of complete meals in suitable crockery can take place individually and be transported on trays in suitable trolleys to the different service points for serving to the patient/client.
- An alternative method is that food is portioned and garnished in mass portions in stainless steel food containers with lids, and transported to the service points in suitable food trolleys where it is dished up for serving to the patient/client.
- With the pre-dished tray-food service system the trays with used crockery are placed back in the food trolley and transported back to the food-service unit where it is centrally washed up. Cups, saucers, bread plates and cutlery are washed and stored at the service points.
- When food is served from food trolley containers at the service points, the washing-up procedure can be decentralised or partially decentralised:
(i) Decentralised procedure
The cleaning and washing up of the food trolley and food trolley containers and all crockery takes place at the service points. The clean crockery is stored at the service points. The clean trolley with containers is taken back to the food-service unit.
(ii) Partially decentralised procedure
Some crockery - such as cups, saucers, bread plates and cutlery - is washed and stored at the service points. The other used crockery is transported in the food-service unit, where it is cleaned and washed up, as well as the food trolley with food trolley containers.

Cook-freeze food system
Cook-freeze means a catering system based on full cooking followed by fast freezing, and complies with the following criteria:
- The cook-freeze food system is a system in which the preparation period is separated from the serving period by a freezing process and frozen storage.
- Food preparation takes place according to standardised recipes with adaptations where necessary to prevent the detrimental effect of freezing on some foods such as the stabilisation of starch products.
- Food preparation takes place according to conventional or automated preparation methods. The food preparation and freezing can be geographically separated from the service point or client.
- Portioning can be effected in single portions, as complete meals or in mass portions of a suitable size in different packaging materials. Laminated carton, aluminium or plastic containers can be used.
- Reconstitution of frozen food takes place at the service points in convection ovens.

Cook-chill food system.
Cook-chill means a catering system based on the full cooking of food followed by fast chilling and storage in controlled low-temperature conditions above freezing point (0°C to 3°C) and subsequent thorough reheating close to the consumer before consumption. Cook-chill systems comply with the following criteria:
- With a cook-chill food system the preparation period is separated from the serving period by a temporary cooling process and cooled storage.
- Food is prepared by conventional or automated preparation methods, using standardised recipes. Food is cooked to a temperature of 80% after which it is cooled in a cooling tunnel or cooling room. Complete meals can be portioned or cooled in suitable crockery in which it is served.
- Complete meals cooled in suitable crockery, can be heated in the food service unit and transported on trays in trolleys to the service points for serving to patients.
- Food cooled in mass portions can be dished up in the food service unit in suitable crockery, assembled on trays and transported in trolleys to the service points, where it is heated and served to patients/clients. The cleaning and washing up takes place partially decentralised, as described in the conventional food system.
- Food can alternatively be heated in mass portions at the service points (such as in a cafeteria system), dished up and served. The cleaning and washing up takes place decentralised or partially decentralised, as described in the conventional food system.

Functional Requirements
Activity spaces in the catering service unit
The activities in a catering department are distinct and sequential. See figure 5

The above workflow diagram can be detailed, as in Workflow from delivery to storage and Workflow from storage to dishing-up diagrams below:


The activities taking place in the catering department are categorised under the following zones:
- Deliveries and receiving
- Storage areas
- Preparation areas
- Cooking area
- Dishing up
- Washing up
- Trolley parking
- Offices
- Staff facilities
- Support spaces.
In order to align this design guide with the DoH (2001), the numbering code guide in the DoH document will be used in this document. See TABLE 2.1 for the codes. The colour selected for each zone is arbitrary and only used to visualise relative positions of zones and activities and their relationship to their adjacent activities.

Workflow through a catering service unit
The work flow illustrated in the figure below, if applied to the zones and activities in the code guide table above, it could be illustrated as follows:

The above work flow and spatial relationship could be translated into the following designs: LAYOUT 2.2, a theoretical design; LAYOUT 2.3, an as-built illustration.


General Design Considerations
Improved hygiene conditions
The operating procedure for hygiene control falls outside the scope of this guideline.
Planning and design features to support hygiene control should include the following:
- Containment of steam and moisture.
- Building and layout details that would facilitate easy cleaning.
- Selection of suitable building materials and finishes.
- Selection of fixtures, fittings and equipment with suitable detail, materials and finishes for easy cleaning, and prevention of build-up of harmful organisms.
- Hand washing remains one of the most significant ways in which cross-infection through contact can be avoided. To enhance this, hand-wash facilities should be available in appropriate places and be accessible.
- The selected system for soap and towel dispensers is a hospital policy and dictates the type of dispenser to be specified.
Occupational Health and Safety
Planning and design features to support occupational health and safety include the following:
- Selection of floor finishes with a non-slip finish.
- Selection of fixtures, fittings and equipment with suitable detail, materials and finishes to prevent personal injury through accidents or misuse.
- Provision of suitable and adequate facilities to support and encourage a high level of personal hygiene, with special reference to hand hygiene.
- Provision of adequate dispensing points for the appropriate personal protection (PPE) items.
- Ill-considered dimensions and layouts of fixtures and fittings could have a significant effect on occupational health and the safety of staff
Change and Technology
Although it is difficult to predict future trends in catering department technology, it is advisable to allow some flexibility and adaptability in space requirements, electrical consumption and layout, and also in air-handling capacity.
Current trends that need to be considered are the following:
- The facility should be able to reasonably accommodate access and positioning of possible outsize equipment. Consideration for this possibility should be given from (and including) point of delivery to point of positioning.
- Possible future extensions and/or enlargement of the facility should be considered during the design stage.
- An element of adaptability should be incorporated in the layout, particularly with regard to equipment, where improved models are continuously being developed.
- Engineering services and catering equipment will normally have a much shorter life than the building fabric, and access for plant removal and replacement should therefore form part of the design concept.
The planning and design of the facility should take cognisance of the policies regarding the following services, which could have an influence on the layout:
- Waste management
- Staff ablution facilities
- Staff catering facilities
- Administration (IT, tel, data, fax, etc.)
- Communications
- HVAC systems
- Hot water, steam, compressed air systems
- Power supply and standby power facilities
- Fire detection and prevention
- Security
Ergonomic and user-comfort considerations
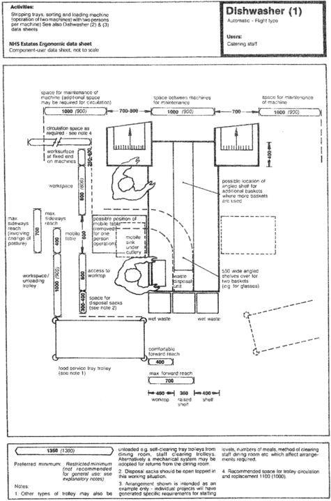
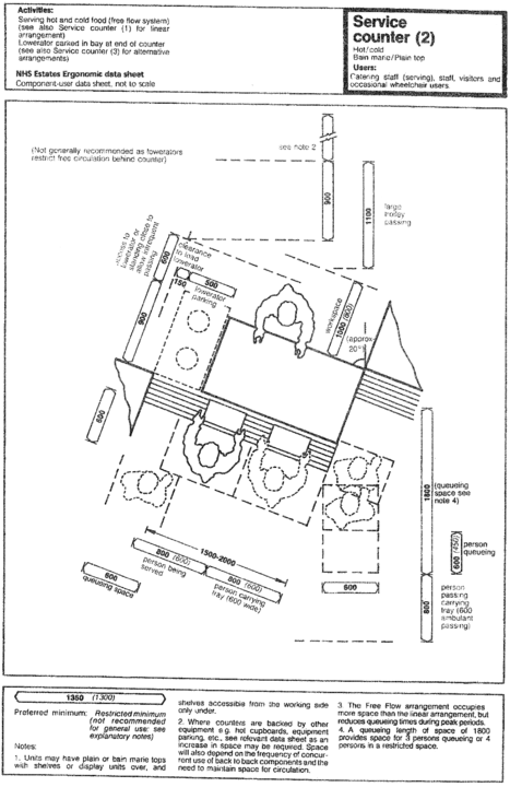
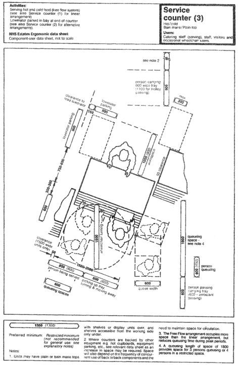
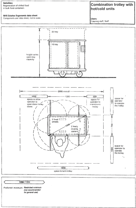
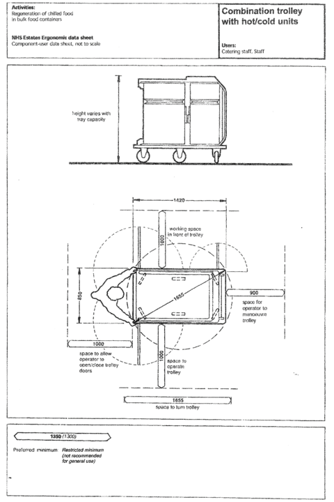
Workspaces should be sufficiently flexible and adaptable to accommodate adequate working spaces for individual comfort. See ANNEXURE A for ergonomic requirements.
Maintenance and cleaning
- The catering department requires conditions of cleanliness and safety with means for maintenance and routine inspection that minimise disruption and risk of contamination.
- Materials and finishes should be selected to minimise maintenance and be compatible with their intended function.
- Building elements that require frequent redecoration or are difficult to service or clean should be avoided.
- Special design consideration should be given to corners, partitions, counters and other elements which may be subjected to heavy use.
- Engineering services and catering equipment will normally have a much shorter life than the building fabric, and access for plant removal and replacement should therefore form part of the design concept.
- Pipe and cable runs must not be routed over cooking or preparation equipment; and pipe insulation must be easily cleaned, impervious to water, and sealed to prevent the harbouring of pests and insects as far as is reasonably practicable.
- The finishes of all equipment and service connections must be able to withstand frequent cleaning.
- Electrical socket outlets, light fittings and switches should be splash-proof.
- Switch rooms should be accessible only from the circulation area, outside food production areas
Pest control
- Catering departments are very prone to infestation, and service ducts, trunking, channels, casings, pipework and insulation should be designed and installed to prevent the ingress of rodents and insects. Overhanging roofs, light fittings, girders and beams should be protected to prevent the entry of birds. All outer doors should be pest-proof, particularly sliding doors and roller shutters.
- Where electric fly-killing units are used they should be carefully sited to ensure maximum effect and to prevent contamination of food, utensils, work surfaces and production lines.
- Ceiling voids and ducting must be accessible from outside the high-risk areas for inspection or treatment purposes.
- The space surrounding equipment must allow access for engineering/ maintenance staff and for regular cleaning. The provision of flexible service connections to each unit and the use of lockable castors or integral rollers will allow equipment to be moved to enable cleaning machines to pass over the whole floor area.
Structure and layout (existing vs future extension)
- Possible future extensions and/or enlargement of the facility should be considered during the design stage.
- An element of adaptability should be incorporated in the layout, particularly with regard to equipment, for which improved models are continuously being developed.
- Engineering services and catering equipment will normally have a much shorter life than the building fabric, and access for plant removal and replacement should therefore form part of the design concept.
Plant and services
The various areas within the catering services unit should accommodate the equipment manufacturer's recommendations, as space requirements may vary from one manufacturer to another. All items of equipment will need to be itemised and the dimensions of all equipment obtained from manufacturers to ensure they can be suitably housed.
The following requirements are relevant:
- doors are to be sized to allow passage of equipment;
- electricity loads need to be estimated and catered for;
- weight loads need to be estimated and checked structurally;
- equipment requiring services such as water and special power need to be accommodated at an early stage;
- all cooking equipment should be located to have service/maintenance access;
- space allowed for and around equipment should be sufficient to allow for the physical equipment as well as circulation/working space around the equipment;
- the spaces should be able to reasonably accommodate access and positioning of possible outsize equipment, including point of delivery to point of positioning; and
- the area should be designed to allow for periodic ease of routine cleaning or, particularly in dirty areas, for handling of accidental spillages
Catering Services Area Determination
Determinants of size and layout
The size of a catering services unit in a hospital is unique to that hospital, as the size, layout and function of the catering department is defined in the Operational Policy Statement that guides the operational management of the hospital. The operational policies specific to the catering department precede the sketch-design stage. These policies are developed by the project team in consultation with health service stakeholders, who should have the knowledge and experience to analyse the various processes in and related to the catering services unit.
These operational policies define the “What, How, When, Where, Who and With What” of any activity and/or process and are major space determinants which could significantly affect the planning and design of the catering services unit, as they can have an impact on the size, configuration and the nature of accommodation.
Operational policies will vary from unit to unit, depending on a wide range of factors, both external and internal to the catering services unit.
Determining factors external to the catering department
Examples of these space determinants could include the following:
- Number of patients and staff to receive meals
- Type of patient (religion/age/culture)
- Type of menu
- Type of food preparation system
- Space availability
- Access to the site
- Amount of space needed for waste management
- Staff facilities to be shared with adjacent departments.
Determining factors internal to the catering department
Examples of these space determinants could include the following:
- Types of food preparation equipment to be used
- Number of and type of cooking system
- Type of food delivery system to be used
- Type of washing-up system or procedure
- Anticipated inventory storage
- Anticipated volume of consumable supplies
- Instrument inventory
- Equipment inventory
- Projected workload
- Staffing structure
- Staffing policy - number of staff to be accommodated.
Catering services area determination
The Bertha Gxoba Hospital in Germiston has 300 beds, and is included in this study for its detailed areas. See layout below:

The IUSS spatial measurement assignment, initiated by the NDoH, and executed by CSIR Building Science and Technology, yielded the information as per Comparative areas of catering service units table. Chris Hani Baragwanath’s kitchen and Bertha Gxoba’s kitchen are also included in this table.
Although the data is not sufficient to provide scientifically sound results, it is an indication of estimated average sizes of kitchens. The data also gives no indication of the efficiency of the layouts.

Based on the information in the Comparative areas of catering service units table the CSIR IUSS measurement team calculated the net kitchen area per bed as per the produced a linear graph. See the table below:
Net kitchen area per bed


If this data is captured on a linear graph with a deviation of 10% in both directions, a range of area estimates can be obtained which serves as a guide to calculate kitchen area per bed.
Area guide: Kitchen area / no. of beds


Individual Space Requirements
The discussion on individual space requirements is based on a layout of the Chris Hani Baragwanath hospital. See Baragwanath hospital main kitchen layout below.
The following shortcomings in the original design are highlighted:
- A separate fish freezer is required (not included in this layout).
- The activity flow of food and refuse should not cross.
For the purpose of this design guide, the refuse collection point and trolley wash areas have been moved to the returns entrance.
Although a variety of loose items are listed under ‘Fixtures, Fittings & Equipment’, these items do not form part of the building contract. Their inclusion in this document is merely to provide an overview of space requirements.

A1 Delivery & Reception area
A1.1 Location & relationship

A1.2 Function
Receipt of provisions. There are three main groups of goods delivered to the kitchen:
- Vegetables (fresh and frozen)
- Raw meat and fish (fresh and frozen items)
- Packaged and dry goods, including dairy.
A1.3 Requirements
An under-cover delivery platform to be the height of a standard delivery vehicle (height approx 1 500mm).
The ramps for mobile trolleys and platforms must slope conveniently and must be calculated in accordance with the platform height.
Platform to have a rubber protection-strip and a set of stairs next to the ramp.
The receiving area and the storage area must be on the same level to facilitate the transport of supplies, for example, and the storage of trolleys.
Lockable roll-up steel door to B1 (pre-preparation area / veg cleaning area).
A1.4 Fixtures, fittings and equipment
Writing board.
Wall-mounted electric clock with battery back-up, as per electrical engineer’s specification.
Stainless steel wash-up sink.
Goods-receiving platform scale.
Preparation table.
Tables with splash back and mild steel coated backing for sound deadening.
Insectocuter (double tube).
Stainless steel wall-mounted hand-wash basins.
A1.5 Services
Hot and cold water.
Waste drainage.
Smoke detection.
Adequate lighting and ventilation (mechanical/natural).
B1 Pre-preparation area: Vegetables & fruit
B1.1 Location & relationship

B1.2 Function
Space for de-crating and pre-cleaning of vegetables.
A pre-cleaning wet area for washing, peeling, cutting, chopping, prior to storage.
B1.3 Requirements
Should have easy access to dry store and vegetable cold room. The area generates a lot of waste or refuse and should be located close to the vegetable store and should have easy access to the refuse-disposal area.
B1.4 Fixtures, fittings and equipment
Paper-towel dispenser
Soap dispenser
Clinical hand-wash basin
Stainless steel pot-wash sink
Work surface, stainless steel with opening for refuse bin
Vegetable washers
Cutting machines
Stainless steel basin with elbow-action mixer, soap and paper-towel dispenser
Refuse bin on dolly.
B1.5 Services
Floor drain
Adequate lighting and ventilation (mechanical/natural)
Hot and cold water
Waste drainage
Smoke detection.
B2 Removal of packaging material
B2.1 Location & relationship

B2.2 Function
Space for removing contents from packaging.
B2.3 Requirements
Should have easy access to dry store and dairy cold room.
The area generates a lot of waste or refuse and should be located close to the vegetable store and should have easy access to the refuse-disposal area.
B2.4 Fixtures, fittings and equipment
Refuse bin on dolly.
B2.5 Services
Adequate lighting and ventilation (natural or mechanical)
Smoke detection.
C.1 Store: Groceries
C1.1 Location & relationship

C1.2 Function
Bulk storage of all dry, bottled and canned goods
C1.3 Requirements
Adjustable shelving.
C1.4 Fixtures, fittings and equipment
Shelf, adjustable, epoxy coated steel (total shelf lengths divided in different adjustable levels).
Mobile bins for flour, sugar, cereals, etc.
Work surfaces.
5-tier high shelves with adjustable feet.
Dunnage racks, s/steel slatted.
White food bins mounted on mobile bin dollies.
C1.5 Services
Adequate lighting
Mechanical exhaust ventilation
C.2 Store: Daily supplies / dry store
C2.1 Location & relationship

C2.2 Function
A store where smaller amounts of the most usual ingredients are withdrawn from the main store to be used that day and measured for recipes.
Weighing and measuring of ingredients according to recipes.
Storage of ingredients according to recipes and batch sizes in basket(s) in trolley(s).
C2.3 Requirements
Adjustable shelving.
Mobile bins for flour, sugar, cereals, etc.
Work surfaces.
C2.4 Fixtures, fittings and equipment
Shelving with 5-tier shelves constructed from 1.2mm galvanised steel with adjustable feet.
Paper-towel dispenser.
Stainless steel basin with elbow-action mixer.
Soap dispenser.
Writing board.
Stainless steel catering sink.
Tabletop scale: 0 to 10kg range.
C2.5 Services
Adequate lighting
Smoke detection
Mechanical extract ventilation.
C.3 Store: Bread
C3.1 Location & relationship

C3.2 Function
Storage of bread on mobile epoxy-coated steel shelves or in steel bread cupboard.
C3.3 Requirements
Good ventilation.
Space allowance for storage of bread for 3 days according to the ration scale.
C3.4 Fixtures, fittings and equipment
Shelving
C3.5 Services
Adequate lighting
Smoke detection
Mechanical extract ventilation.
C.4 Cold room : General
C4.1 Location & relationship

C4.2 Function
Storage of dessert, supplies for night duty, portioned menu items and leftover food.
C3.3 Requirements
Mobile platforms in baskets or plastic food containers.
Temperature controlled at +4˚C
C4.4 Fixtures, fittings and equipment
Shelving s/steel 4-tier high, constructed from 1.2mm 304 s/steel, and uprights constructed from 3mm 40x40mm s/steel uprights with adjustable feet.
C4.5 Services
Prefabricated cold room with 100mm-thick polystyrene insulation walls and roof.
Lockable cold room door with emergency escape knob on inside.
Internal walls clad to 1200mm height with aluminium checker plate.
Modular refrigeration plant consisting of internal evaporator(s) and external condensing unit.
Refrigerant to be ozone friendly.
Facility for evaporator condensate drainage to be provided.
Low-temperature waterproof light fittings.
C.5 Cold room : Dairy products
C5.1 Location & relationship

C5.2 Function
Storage for eggs, milk, cheese, butter, margarine, cream, etc.
C5.3 Requirements
Temperature controlled at +4°C.
Stainless steel shelving and racks, non-corrosive food-grade containers.
C5.4 Fixtures, fittings and equipment
Shelving s/steel 4-tier-high shelves constructed from 1.2mm 304 s/steel and uprights constructed from 3mm 40x40mm s/steel uprights with adjustable feet.
C5.5 Services
Prefabricated cold room with 100mm-thick polystyrene insulation walls and roof.
Lockable cold room door with emergency escape knob on inside.
Internal walls clad to 1200mm height with aluminium checker plate.
Modular refrigeration plant consisting of internal evaporator(s) and external condensing unit.
Refrigerant to be ozone-friendly.
Facility for evaporator condensate drainage to be provided.
Low-temperature waterproof light fittings.
C.6 Cold room : Meat
C6.1 Location & relationship

C6.2 Function
Storage of meat delivered ready-portioned (in some cases may be in large cuts).
Storage of fresh and processed meat in plastic food containers on stainless steel 3-tier shelves
C6.3 Requirements
Temperature +4°C
Stainless steel shelving and racks, non-corrosive food-grade containers.
C6.4 Fixtures, fittings and equipment
Shelving s/steel 4-tier high.
C6.5 Services
Prefabricated cold room with 100mm-thick polystyrene insulation walls and roof. Lockable cold room door with emergency escape knob on inside.
Internal walls clad to 1200mm height with aluminium checker plate.
Modular refrigeration plant consisting of internal evaporator(s) and external condensing unit.
Refrigerant to be ozone-friendly.
Facility for evaporator condensate drainage to be provided.
Low-temperature waterproof light fittings.
C.7 Cold room : Fresh vegetables and fruit
C7.1 Location & relationship

C7.2 Function
Storage of pre-prepared vegetables and fruit in baskets on mobile shelves for food.
C7.3 Requirements
80% humidity
Storage containers on shelves or racks
Good ventilation
Ambient temperature 15° to 20°C
Minimum amount of daylight
Minimum of three air changes per hour
Racking with shelves or wire mesh containers.
C7.4 Fixtures, fittings and equipment
Shelving s/steel 4-tier-high shelves.
C7.5 Services
Prefabricated cold room with 100mm thick polystyrene insulation walls and roof.
Lockable cold room door with emergency escape knob on inside.
Internal walls clad to 1200mm height with aluminium checker plate.
Modular refrigeration plant consisting of internal evaporator (s) and external condensing unit.
Refrigerant to be ozone-friendly.
Facility for evaporator condensate drainage to be provided.
Low-temperature waterproof light fittings.
C.8 Freezer room
C8.1 Location & relationship

C8.2 Function
This store can open off one of the cold stores for maximum efficiency.
Storage of frozen food in packaging material on stainless steel, 5-tier shelves or on freezer shelves.
C8.3 Requirements
Temperature -20°C.
Stainless steel shelving and racks, non-corrosive food-grade containers.
No floor drains in freezer rooms.
C8.4 Fixtures, fittings and equipment
Shelving s/steel 4-tier-high shelves
C8.5 Services
Prefabricated cold room with 100mm thick polystyrene insulation walls and roof.
Floor structure recessed, insulated with 100mm-thick polystyrene or polyurethane insulation, covered with concrete and screed - to be level with rest of floor.
Lockable cold room door with emergency escape knob on inside.
Internal walls clad to 1200mm height with aluminium checker plate.
Modular refrigeration plant consisting of internal evaporator(s) and external condensing unit.
Refrigerant to be ozone-friendly.
Facility for evaporator condensate removal in heated pipework to be provided.
No floor drains in freezer rooms.
Low-temperature waterproof light fittings.
C.9 Store : Fresh vegetables and fruit
C9.1 Location & relationship

C9.2 Function
Storage of vegetables and fruit in packaging material on mobile platforms or in baskets on mobile shelves for food..
C9.3 Requirements
Minimum amount of daylight
Minimum of three air changes per hour
Racking with shelves or wire mesh containers.
C9.4 Fixtures, fittings and equipment
Shelving
C9.5 Services
Adequate lighting
Smoke detection
Mechanical-extract ventilation.
C.10 Store : Cleaning material and equipment
C10.1 Location & relationship
C10.2 Function
Reserves of cleaning materials and equipment such as soap powder, detergents, disinfectants, mops, squeegees and scrubbers must be stored.
C10.3 Requirements
Store needs to be away from food
Good drainage.
C10.4 Fixtures, fittings and equipment
Stainless steel sink with slatted shelving below.
Stainless steel hospital drip sink with hinged grating.
Hook above drainage furrow on which mops, brooms and squeegees are hanged.
Shelving s/steel 4-tier- high shelves.
Wash trough.
C10.5 Services
Floor drain / grease trap as per civil engineer’s specifications.
Smoke detection.
Adequate lighting.
Mechanical-extract ventilation.
Hot and cold water.
Waste connection.
C.11 Store : Crockery, utensils, linen
C11.1 Location & relationship
C11.2 Function
Storage of new/additional crockery.
Storage of clean linen in use and additional linen supplies.
C11.3 Requirements
C11.4 Fixtures, fittings and equipment
Adjustable epoxy-coated steel shelves.
C11.5 Services
Adequate lighting
Smoke detection.
C.12 Store : Refuse
C12.1 Location & relationship
C12.2 Function
Storage of waste and refuse awaiting removal preferably refrigerated to inhibit odours and insects.
Storage of wet refuse in refuse bins with lids.
Storage of dry refuse in secured plastic bags.
Parking of trolley for refuse removal.
Storage of hosepipe with spout on hook.
Cleaning and disinfecting of refuse bins and lids on stand, and hook over drainage furrow.
Cleaning and disinfecting of the area.
C12.3 Requirements
Temperature 5°C, if refrigerated.
Water connection for hosing down.
Exit for daily refuse removal to central refuse removal area of the hospital/ institution.
Hook and drainage funnel for clean refuse bins and lids.
Must be resistant to animals, rodents, flies and other insects.
Good temperature control.
Good drainage.
Allowance calculated at 3 refuse bins per 600 meals and 1 bin for each additional 300 meals.
Must be physically separated from incoming raw materials, and/or food being processed.
C12.4 Fixtures, fittings and equipment
Hosepipe with spout.
Container for hosepipe and spout, wall mounted.
C12.5 Services
Prefabricated cold room with 100mm-thick polystyrene insulation walls and roof.
Lockable cold room door with emergency escape knob on inside.
Internal walls clad to 1200mm height with aluminium checker plate.
Modular refrigeration plant consisting of internal evaporator(s) and external condensing unit.
Refrigerant to be ozone-friendly.
Facility for evaporator condensate drainage to be provided.
Low-temperature waterproof light fittings.
Floor channel with grid over / floor drain / grease trap, as per civil engineer’s specifications.
Cold water supply (hose bibcock).
D.1 Preparation : vegetables and fruit
D1.1 Location & relationship
D1.2 Function
A wet area used for washing, peeling, cutting, chopping.
Raw vegetables are prepared for cooking, while salad vegetables and fruit are cleaned and prepared before being taken to other areas for final make-up.
The area generates a lot of waste or refuse and should be located close to the vegetable store and should have easy access to the refuse-disposal area.
Prepare (process) vegetables and fruit for cooking or serving.
D1.3 Requirements
Good ventilation.
Good drainage.
Floor finish must be durable and slip-resistant.
D1.4 Fixtures, fittings and equipment
Stainless steel basin with elbow-action mixer, soap and paper-towel dispenser
Soap dispenser.
Refuse bin on dolly.
Potato peeler with stainless steel vegetable-prep sink.
Vegetable peeler and stand.
Combination preparation sinks.
Preparation tables.
Vegetable preparation machine floor-standing model.
Double-bowl preparation sink.
Can opener.
D1.5 Services
Floor drain as per civil engineer’s specifications.
Hot and cold water.
Waste connection to grease trap.
Mechanical ventilation.
Adequate lighting.
Smoke detection.
Splash-proof switched socket outlet.
D.2 Preparation : Fish and Poultry
D2.1 Location & relationship
D2.2 Function
Prepare fish and poultry for cooking according to recipe.
D2.3 Requirements
Sinks.
Good drainage.
Floor finish must be durable and slip-resistant.
D2.4 Fixtures, fittings and equipment
Paper towel dispenser.
Soap dispenser.
Work surface, stainless steel.
Preparation sinks.
Stainless steel basin with elbow-action mixer, soap and paper-towel dispenser.
Refuse bin on dolly.
D2.5 Services
Floor drain / grease trap as per civil engineer’s specifications
Mechanical ventilation.
Adequate lighting.
Smoke detection.
Splash-proof switched socket outlets.
Hot and cold water.
Waste connection to grease trap
D.3 Preparation : Meat
D3.1 Location & relationship
D3.2 Function
All meat should lead off meat cold room with easy access to the freezer.
Prepare meat for cooking according to recipe.
D3.3 Requirements
Good drainage.
Floor finish must be durable and slip-resistant
D3.4 Fixtures, fittings and equipment
Stainless steel basin with elbow-action mixer, soap and paper-towel dispenser.
Paper towel dispenser.
Soap dispenser.
Butcher block.
Refuse bin on dolly.
Meat saw.
Mincing machine.
Slicing machine.
Preparation tables
Storage for:
- Knives.
- Sharpening steels.
- Chopping boards.
- Machine attachments.
- Containers
D3.5 Services
Floor drain / grease trap as per civil engineer’s specifications.
Mechanical ventilation.
Adequate lighting.
Smoke detection.
Splash-proof switched socket outlets.
Hot and cold water.
Waste connection to grease trap
D.4 Preparation : General
D4.1 Location & relationship
D4.2 Function
All meat should lead off meat cold room with easy access to the freezer.
Prepare meat for cooking according to recipe.
D4.3 Requirements
Good drainage.
Floor finish must be durable and slip-resistant
D4.4 Fixtures, fittings and equipment
Mixers.
Slicers.
Pastry top and roller.
Scales.
Bins.
Pan racks.
Stainless steel wall-mounted Clinical hand-wash basins.
Can opener.
Preparation tables.
Double-bowl preparation sinks.
Worktop refrigerator 1.5 door.
Mixer 20-litre with hub.
Wrap master.
Microwave oven.
Sandwich toaster.
Work surface, stainless steel with drawers.
Stainless steel basin with elbow-action mixer, soap and paper-towel dispenser.
Soap dispenser.
Paper towel dispenser.
Elbow-operated disinfectant dispenser.
Writing board.
Stainless steel catering sink.
D4.5 Services
Floor drain / grease trap as per civil engineer’s specifications.
Hot and cold water.
Waste connection to grease trap.
Mechanical ventilation.
Smoke detection.
Adequate lighting.
D.5 Preparation : Bread & Sandwiches
D5.1 Location & relationship
D5.2 Function
Cut and pack bread.
Prepare sandwiches and snacks.
Toast sandwiches.
Park multi-purpose trolley.
D5.3 Requirements
Good drainage.
Floor finish must be durable and slip-resistant.
D5.4 Fixtures, fittings and equipment
Work surface, stainless steel with drawers.
Stainless steel basin with elbow-action mixer, soap and paper-towel dispenser.
Double-bowl preparation sinks.
Bread slicer.
Sandwich toaster.
Wrapping machine.
Cheese/polony slicer.
Preparation table.
Two-tier wall-mounted shelves.
Shelving: galvanised 5-tier-high shelves.
D5.5 Services
Floor drain / grease trap as per civil engineer’s specifications.
Mechanical ventilation.
Adequate lighting.
Smoke detection.
Splash-proof switched socket outlets.
Hot and cold water.
Waste connection to grease trap.
D.6 Preparation : Therapeutic (special) diets
D6.1 Location & relationship
D6.2 Function
This is a part of food-preparation area where special or therapeutic diets are prepared.
An area where different diets are prepared in relatively small amounts, this would be fitted with standard storage and preparation equipment and some small-scale cooking equipment.
Allowance for storage must be made.
Prepare cold items for all therapeutic diets.
D6.3 Requirements
Tube feeds can also be prepared here in units smaller than 500 beds.
Worktop height of 910mm.
Storage for dry and soiled utensils at each work station.
D6.4 Fixtures, fittings and equipment
Disinfectant container.
Soap dispenser.
Paper-towel dispenser.
Stainless steel basin with elbow-action mixer, soap and paper-towel dispenser.
Elbow-operated disinfectant dispenser.
Writing board.
Wall-mounted boiling-water dispenser (hydro boil).
Table-top vegetable blender/mixer.
Ice machine.
Portion scale.
Can opener.
Wrap master.
Three-division bain-marie on mobile hot closet.
Preparation tables.
Vegetable blender/mixer.
Combination preparation sink.
D6.5 Services
Floor drain / grease trap as per civil engineer’s specifications.
Adequate lighting.
Smoke detection.
Mechanical ventilation.
Clean power point.
Data point.
Telephone point.
Normal power switched socket outlets.
Hot and cold water.
Waste connection to grease trap.
D.7 Preparation : Tube feed
D7.1 Location & relationship
D7.2 Function
Weigh ingredients for tube feeds.
Preparation of (mix) tube feeds according to directions and recipes.
Pack, seal and label tube feeds.
Store tube feeds in refrigerator.
D7.3 Requirements
Air-conditioning with filtered fresh-air supply.
Tube feed preparation area.
This area must be locked after use.
A notice board must be available here.
No ventilation openings above work surfaces – to prevent bacterial contamination of feeds.
D7.4 Fixtures, fittings and equipment
Disinfectant container.
Notice board, 1 x 1 m
Refrigerator, gastronorm, reach-in type.
Stainless steel basin with elbow-action mixer, soap and paper-towel dispenser.
Soap dispenser.
Elbow-operated disinfectant dispenser.
Writing board.
Wall-mounted electric clock with battery back-up, as per electrical engineer’s specification.
Stainless steel catering sink.
D7.5 Services
Floor drain / grease trap as per civil engineer’s specifications.
Air-conditioning unit remote from room, with filtered fresh-air pressurisation.
Control temperature at 22˚C.
Smoke detection.
Normal power switched socket outlets.
Clean power point.
Data point.
Telephone point.
Hot and cold water.
Waste connection to grease trap.
E.1 Cooking area
E1.1 Location & relationship
E1.2 Function
Fry, cook and steam items according to recipe.
Boil water.
E1.3 Requirements
All major services – provide water point with appropriate taps next to boiling and tilting pans.
If island formation, allow wall or pedestals between equipment to house water, electricity and gas connections.
Provide continuous easy to clean drainage channel covered with removable stainless steel grid in front of all cooking equipment.
Dimensions to be such that discharge from equipment is covered for full pan/pot-tilting operation.
Kitchen floor may fall slightly towards these channels and other appropriate floor drains, to facilitate cleaning with a high pressure hose.
Provide water connection for high-pressure cleaning hose.
Provide gas-heated industrial stove if standby power is inadequate.
E1.4 Fixtures, fittings and equipment
Tilting frying pans.
Cooking pots, steam or oil jacketed, tilting type on stand.
Ovens, convection, steam and bake.
Stove, industrial, electric with oven.
Stove, industrial, gas with oven.
Urns.
1.1. Griddles and boilers.
Tilt pans s/steel.
Combi steamer (20 pan) including grids, solid and perforated inserts and standard baking trays as well as a spare roll-in trolley for each oven.
Cooker mixer with hydraulic tilt.
Special cooker unit (self-generating steam).
Preparation tables with splash-back to the rear of table only.
E1.5 Services
Floor channel with grid over, to discharge to grease trap as per civil engineer’s specifications. Channels must cover discharge from pots through full tilting cycle.
Stainless steel air-extraction canopy must be provided over all cooking equipment. This should be fitted with easily removable/replaceable filters for cleaning. It must also be fitted with built-in lighting, accessible from outside the cooking island, and a carbon-dioxide dousing system.
Portable fire-fighting equipment to comply with National Building Regulations must be provided nearby.
Extract duct work to be from stainless steel, and sound attenuators coated internally with flexible lining allowing cleaning.
Fire dampers required in extract duct work where fire walls are penetrated.
Filtered ventilation air make-up required to replenish 90% of canopy exhaust air. Temper to 20˚C if supplied in general areas, otherwise supply air around canopy only. Make-up system must run only when extract system runs.
The total size will be determined by the size of the food-service unit in terms of the number of meals cooked per day.
The layout will vary, depending on the number and type of equipment required.
Waterproof three-phase and single-phase power points must be supplied as required.
Separate power supply to each cooking unit.
Separate steam line (If applicable) and electrical line.
Water-supply and steam-supply pipes from beneath floor surface.
F1 Dishing-up & garnishing
F1.1 Location & relationship
F1.2 Function
Area for finishing – that is, mashing, dicing, slicing, etc., of cooked food.
Food is placed into containers or plated.
Needs to be located close to clean trolley park.
Ready-packed trolleys are checked and wait for transportation to the wards.
Park mobile lowerator with trays next to conveyor belt.
Park mobile electrical crockery lowerator next to conveyor belt.
Place trays and plates on conveyor belt.
Park electrical, mobile bain-marie next to conveyor belt
F1.3 Requirements
Good drainage.
Floor finish must be durable and slip-resistant.
Parking space for crockery racks and lowerators.
F1.4 Fixtures, fittings and equipment
Electric conveyor belt with bi-directional speed control, switched socket outlets, emergency stop, proximity switch, stop/start switch, splash-proof prewired distribution panel and bumper rail.
S/steel mobile mug dispenser.
Electric conveyor toaster.
Stainless steel mobile table with braked castors and solid under-shelves.
Self-contained 1.5m high door under-bar fridge, mobile, all s/steel with polar top.
Bain maries with mobile hot closets.
Mobile crockery racks.
Electric mobile double-tube heated plate and crockery lowerators.
Ward trolleys.
S/steel mobile cover trolley with low tilted base.
S/steel three-tier mobile trolley.
F1.5 Services
Floor drain / grease trap as per civil engineer’s specifications.
Three-phase pedestal power supply to conveyor.
Adequate lighting.
Smoke detection.
Mechanical ventilation.
K.2 Wash-up : Crockery
K.2.1 Location & relationship
K.2.2 Function
Wash and scrape crockery.
Spray cutlery.
K.2.3 Requirements
Soiled dishes are scraped and loaded into racks before being placed in the dish washer.
Clean plates and dishes can be stored on crockery racks or in lowerators.
Scraper table, rinse sink, dish washer and outlet table.
K.2.4 Fixtures, fittings and equipment
Work surface, stainless steel with shelves.
Refuse bin on trolley.
Double-bowl pre-rinse sink with overhead spray and splash-back.
Dishwashing machine, industrial: hood type (300 or fewer beds); conveyor type (over 300 beds).
Drying racks.
Stainless steel dump table c/w scraper hole and rubber bung with cantilevered storage shelf above.
Stainless steel inlet table.
Dishwasher outlet table with boxed edges.
K.2.5 Services
Floor drain / grease trap as per civil engineer’s specifications.
Three-phase power supply to dishwasher.
Adequate lighting.
Smoke detection.
Hot and cold water.
Waste connections to grease trap.
Steam hood over dishwasher.
K.3 Wash-up : Pots & Pans
K.3.1 Location & relationship
K.3.2 Function
Wash, scrape and rinse pots and pans.
Spray pots and pans.
Store pots and pans on shelf.
K.3.3 Requirements
Soak sinks.
Pot-wash sinks.
Work tables.
Pot racks.
Drainage opening in the middle of the floor for effective drainage.
K.3.4 Fixtures, fittings and equipment
Stainless steel pot sinks, double bowl with splash-back along rear and large bowls.
Water hose with nozzle at first sink.
Refuse bin on trolley.
Soap dispenser, automatic, at sink.
Rinsing hose at sink.
Stainless steel wall mounted pot racks.
Mobile pot racks.
Stainless steel dump table c/w scraper hole and rubber bung.
Gastronorm trolley..
K.3.5 Services
Floor drain to grease trap as per civil engineer’s specifications.
Hot and cold water.
Waste connections to grease trap.
Adequate lighting.
Smoke detection.
Mechanical ventilation.
K.4 Trolley wash area
K.4.1 Location & relationship
K.4.2 Function
A trolley wash bay is provided for cleaning the ward food trolleys and dining-room clearing trolleys and other mobile equipment.
Spray trolleys clean with hosepipe and nozzle.
Dry trolleys.
K.4.3 Requirements
Sloped non-slip washable floor.
K.4.4 Fixtures, fittings and equipment
Hosepipe with nozzle and linkage (length determined by floor surface and position of tap) container, hosepipe and nozzle, wall-mounted.
K.4.5 Services
Floor drain to grease trap as per civil engineer’s specifications.
Hot and cold water to trolley wash spray tap.
Adequate lighting.
Smoke detection.
Mechanical ventilation.
L.1 Parking area : Crockery and tray racks
L.1.1 Location & relationship
L.1.2 Function
Park mobile lowerators for crockery and trays.
Heat mobile lowerators for crockery (In smaller facilities this can be done at the plating conveyor).
L.1.3 Requirements
Electricity supply for crockery lowerator.
Good illumination.
Good ventilation
L.1.4 Fixtures, fittings and equipment
Shelving'
L1.5 Services
Mechanical ventilation.
Adequate lighting.
Smoke detection.
Switched socket outlets to preheat lowerators (if applicable).
L.2 Parking area: food trolleys
L.2.1 Location & relationship
L.2.2 Function
Park food trolleys.
Heat food trolleys, depending on the type of trolley in use.
L.2.3 Requirements
If food-distribution system requires heated trolleys, the preheating of the trolleys must occur here.
Each trolley parking bay must be provided with a power point.
With restricted wall space. switch socket outlets can be provided from pendants.
Space to be allowed for spare trolleys.
L.2.4 Fixtures, fittings and equipment
Electricity supply is determined according to type of food trolleys and space available.
L.2.5 Services
Adequate lighting.
Smoke detection.
Switched socket outlet, normal power – one per trolley, plus one spare per eight trolleys.
M.1 Office : Dietician
M1.1 Location & relationship
M1.2 Function
Perform administrative duties.
M1.3 Requirements
View over activities in area.
M1.4 Fixtures, fittings and equipment
Formica worktop.
M1.5 Services
Air-conditioning (split unit).
Normal power switched socket outlets.
Clean power point.
Data point.
Telephone point.
Smoke detection.
Adequate lighting.
M.2 Office : Food service manager
M.2.1 Location & relationship
M.2.2 Function
Making and receiving phone calls.
Writing reports.
Access and print data from computer.
Unit management.
Shift handover meetings.
Staff management.
Record keeping and storage.
M.2.3 Requirements
View over activities in area.
Lockable office door.
M2.4 Fixtures, fittings and equipment
Desk/sitting-height worktop.
Pinning board.
Whiteboard with marker tray.
Blinds for privacy.
Shelving.
M.2.5 Services
Air-conditioning (split unit).
Adequate lighting.
Smoke detection.
Normal power switched socket outlets.
Clean power supply.
Data point.
Telephone point.
M.3 Office : Food service supervisors
M.3.1 Location & relationship
M.3.2 Function
Perform administrative duties.
M.3.3 Requirements
View over activities in area.
M.3.4 Fixtures, fittings and equipment
Formica worktop.
M.3.5 Services
Air-conditioning (split unit).
Adequate lighting.
Smoke detection.
Normal power switched socket outlets.
Clean power supply.
Data point.
Telephone point.
M.4 Office : Clerk (Delivery area)
M.4.1 Location & relationship
M.4.2 Function
Perform administrative duties.
M.4.3 Requirements
View over activities in area.
M.4.4 Fixtures, fittings and equipment
Formica worktop and shelving.
M.4.5 Services
Air-conditioning (split unit).
Adequate lighting.
Smoke detection.
Normal power switched socket outlets.
Clean power supply.
Data point.
Telephone point.
Glossary
Circulation
Circulation space is the space required within a department or unit to enable movement and functionality between individual rooms/ spaces.
Cleaning
The removal of contamination (often referred to as ‘soil’) from a surface to the extent necessary for further processing (e.g., disinfection, sterilization) or for intended use.
Device
Any instrument, apparatus, appliance, material or other article intended to be used for the purpose of diagnosis, prevention, monitoring, treatment or alleviation of disease or other medical/surgical use. A reusable device is designed to be used many times on different patients, being provided with detailed instructions on how it can be safely reprocessed between each patient. A single-use device (SUD) has been designed by a manufacturer to be used on a single patient only and then discarded. The terms ‘device’ and ‘instrument’ are used interchangeably throughout the book.
Facility
A complex of buildings, structures, roads and associated equipment, such as a hospital or healthcare facility that represents a single management unit for financial, operational maintenance or other purposes.
Fixtures
Items that are permanently fixed to the building or permanently connected to a service distribution system. These items require service connections (e.g. electrical, hydraulic, mechanical) and include clinical hand-wash basins, light fittings, clocks, medical service panels, etc.
Fittings
Refers to fixed items attached to walls, floors or ceilings that do not require service connections such as, hooks, mirrors, blinds, joinery, pinning and writing boards.
Gross Area
Gross area includes, in addition to the net area, partitions and circulation internal to the functional area of the department.
Mobile Equipment
Equipment items (medical or non-medical) that require electrical or mechanical connections or floor space.
Net Area
Net area is the actual floor area in a room or functional area (finish to finish) that can be used by people, furnishings, or equipment.
PPE (Personal Protective Equipment)
Specialised clothing or equipment worn by an employee for protection against a hazard.
Process
A designed sequence of operations or events, possibly taking up time, space, expertise or other resource, which produces some outcome
Annexure 1. Egornomic requirements
The following ergonomic data is from Appendix II (HBN 10, 1997).













