IUSS Drawings Repository
From The HILLSIDE
(Redirected from
Drawings
)
Jump to navigation
Jump to search
Contents
1
Gazetted IUSS drawings
1.1
Procedure Room
1.2
Functional Space Theatre
1.3
Treatment Room
1.4
Functional Space Neonatal
1.5
Neonatal Baby Resus
Gazetted IUSS drawings
Procedure Room
3D view
Plan View
Elevation
Functional Space Theatre
Plan View - Pre OP Holding Bay
Plan View - Post OP Recovery Bay
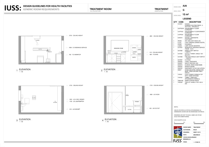
Treatment Room
3D View and Plan view
Elevation
Functional Space Neonatal
Plan View - Standard bassinets and High Care (Incubators and baby stations)
Plan View - Intensive care
Neonatal Baby Resus
3D View
Plan View
Elevation
Navigation menu
Personal tools
British English
Request account
Log in
Namespaces
Page
Discussion
British English
Views
Read
View source
View history
More
Search
Navigation
Main page
Recent changes
Random page
Help about MediaWiki
Tools
What links here
Related changes
Special pages
Printable version
Permanent link
Page information
E-mail this user